AS a scomparsa
Il progetto che sembrava impossibile da certificare sotto il profilo della tenuta agli agenti atmosferici, è diventato realtà. Alte prestazioni di resistenza all' acqua, all' aria e trasmittanza termica compatibile con i più severi protocolli per l'efficienza energetica degli edifici.

Caratteristiche tecniche

Tenuta all'acqua
Tenuta all'acqua fino a 7A
Permeabilità all'aria
Permeabilità all'aria fino a 4
Resistenza al carico del vento
Resistenza al carico del vento fino a C1
Resistenza all'urto
Resistenza all'urto fino a 2
Trasmittanza termica
Trasmittanza termica fino a 1,6 W/m2K
Campo di applicazione verticale
Campo di applicazione verticale 800÷3000 su anta scorrevole
Campo di applicazione orizzontale
Campo di applicazione orizzontale 650÷3000 su anta scorrevole
Tipologia
Tipologia per legno

Certificazioni / In Evidenza

CE
CE
Cascading
Cascading
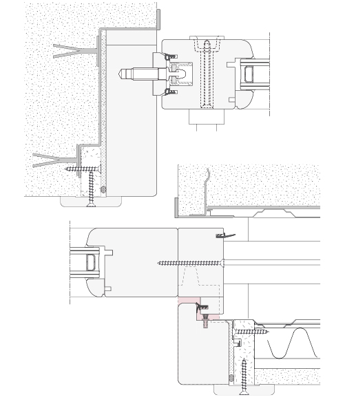
Bocca cassonetto

Bocca cassonetto

Realizzato con le fascette in legno porta guarnizione. Viene aggiunto uno spazzolino che crea una camera di decompressione, alleggerendo il lavoro che le guarnizioni devono compiere per proteggere dalle infiltrazioni di acqua e aria.
Nodo superiore

Nodo superiore

Un classico tampone in spugna rivestita, abbinato alla guida universale ridotta, garantisce ottima tenuta agli agenti atmosferici. E' possibile adottare l'innovativo profilo di sigillatura che corre lungo il traverso superiore dell'anta e che si appoggia al listello. Anta e telaio vengono quindi sigillati grazie a questo profilo fornito di mousse a celle chiuse.
Binario a pavimento

Binario a pavimento

Grazie alla sinergia con le nuove guarnizioni e con il tampone centrale, anche i binari bassi riescono ad ottenere ottime prestazioni di tenuta all'acqua.
Sei interessato ad
acquistare questo prodotto?
Contattaci per maggiori informazioni