Sistema di chiusura ideale per imposte in PVC, legno o alluminio. Le nuove spagnolette XS sono state sviluppate appositamente per applicazioni su profili anta ridotti.
Sono disponibili in 2 versioni: Spagnoletta a scatto XS e Spagnoletta Unica XS.

Caratteristiche tecniche

Rotazione
Rotazione 90°/180°
Finitura
Finitura Black Powerage
Silver Powerage
Base verniciabile
Materiale
Materiale zama
Spagnoletta a scatto XS

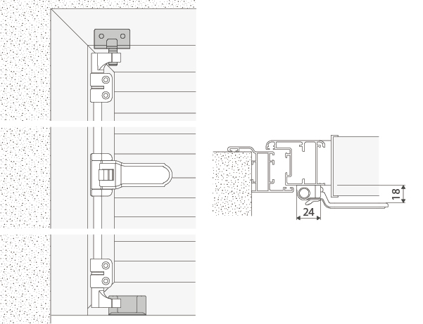
Spagnoletta a scatto XS

Adatta a profili anta ridotti fino a 24 mm, la spagnoletta a scatto XS dispone di viti a scomparsa e ganci compatibili con perni di chiusura esistenti e viti a scomparsa.
Spagnoletta Unica XS

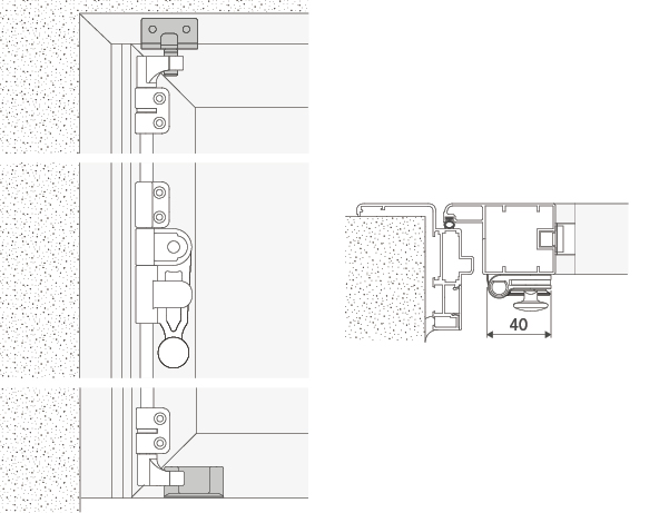
Spagnoletta Unica XS

Adatta a profili anta ridotti fino a 40 mm, la spagnoletta Unica XS dispone di guida asta e fermo maniglia XS. E' utilizzabile anche su sistemi a 2 ante con fermaimposte standard.
Sei interessato ad
acquistare questo prodotto?
Contattaci per maggiori informazioni